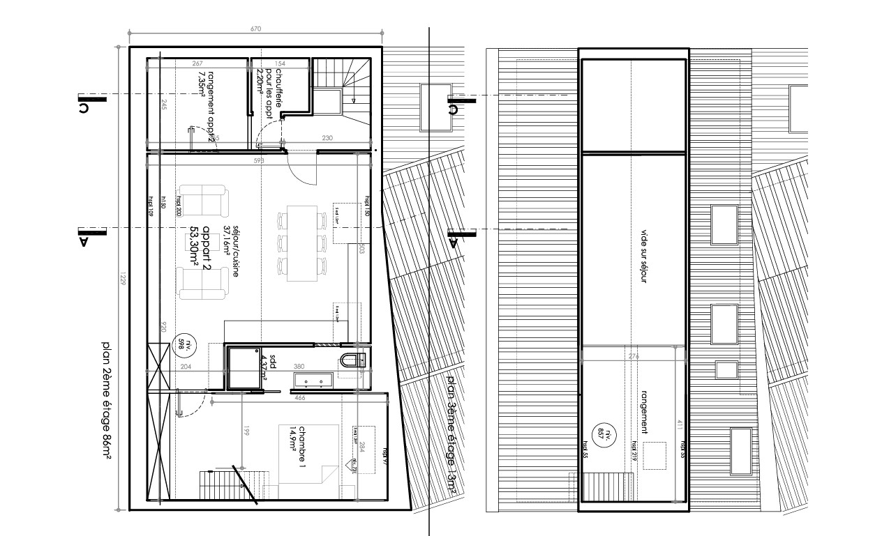
SOUS COMPROMIS A proximité immédiate de la place Saint Job (commerces, restaurants, transports, écoles), dans une petite copropriété sans ascenseur et à faibles charges comprenant seulement 3 unités, charmant appartement situé au 2 -ème et dernier étage, d’une superficie nette de +/- 70 m², composé d'un lumineux living de + /- 35 m² avec cuisine ouverte, d'une chambre de 14 m², d'une salle de douche avec toilette, une mezzanine idéale comme coin lecture ou espace de rangement. Vous apprécierez le charme des belles poutres apparentes et du beau plancher au sol. Local vélo au rez-de-chaussée, à visiter sans tarder ; parfait pour un premier achat, un pied-à-terre ou un investissement locatif. Faire offre à partir de 195.000 € (sous réserve d'acceptation du propriétaire)
