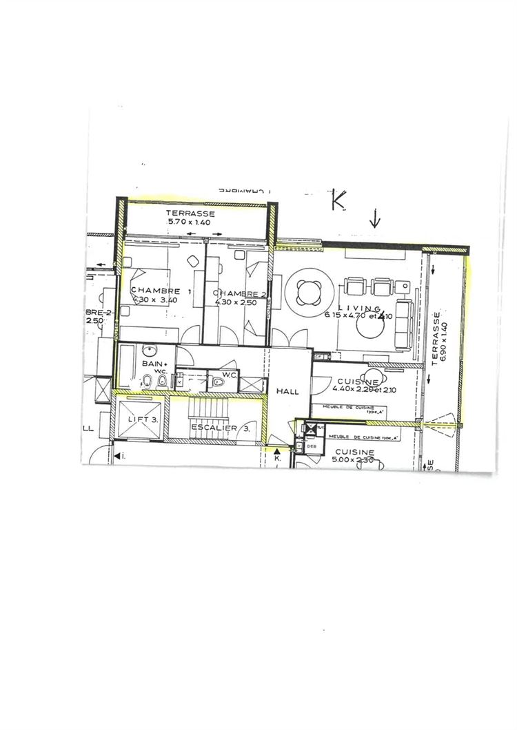
SOUS OPTION A proximité du shopping et de toutes ses facilités (commerces, bus, axes routiers) dans un agréable cadre verdoyant , cet appartement d'angle de 89 m² (selon le PEB), au 1er étage, offre une excellente luminosité et un agencement optimal. Il se compose d' un hall d'entrée spacieux de 11 m² avec porte blindée, vestiaire et toilette séparée, une cuisine équipée avec accès direct à la terrasse, un grand séjour lumineux de 30 m², ouvrant également sur la terrasse principale et équipée d'une tente solaire électrique, 1 chambre avec une grande garde-robes de 14m², une 2ème chambre de 11 m², chacune avec accès à une seconde terrasse, salle de bain avec baignoire, lavabo et toilette, cave privative. En supplément, faire offre pour le box fermé de 17 m². Chaudière collective au gaz à condensation, façades rénovées en 2024, PEB C, Faire offre à partir de 190.000 € sous réserve d'acceptation du propriétaire.
